Calculate the radial force acting on bearings in a carousel

  • Thread starter Thread starter Yves De Keuster
  • Start date Start date
  • Tags Tags
    Force Radial
Click For Summary

Discussion Overview

The discussion revolves around calculating the radial force acting on bearings in a playground carousel design. Participants explore the forces involved in the carousel's operation, particularly focusing on the radial load and the configuration of the bearing mechanism. The conversation includes considerations of safety standards and design variations.

Discussion Character

  • Technical explanation
  • Conceptual clarification
  • Debate/contested
  • Experimental/applied

Main Points Raised

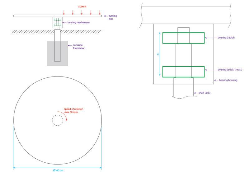
  • Yves outlines the need to calculate forces for a carousel design, specifying a load of 5000N and a maximum speed of 60 rpm.
  • BvU calculates that the radial force could reach approximately 16 kN based on the centripetal acceleration required at that speed, suggesting that the effective radius may be less than the full radius of the carousel.
  • BvU recommends positioning the radial bearing as high as possible to manage the radial force effectively and mentions the importance of considering user comfort at high speeds.
  • A later reply from Yves confirms that the 60 rpm includes a safety factor and discusses the design variations being considered, including the placement of bearings.
  • Another participant, Berkeman, raises concerns about the necessity of adhering to industry standards and suggests that professional engineering input may be required for safety compliance.
  • Yves acknowledges awareness of relevant safety standards in Europe and the USA, emphasizing the designer's responsibility to meet these requirements.

Areas of Agreement / Disagreement

Participants express differing views on the design approach and the necessity of professional engineering standards. While there is agreement on the importance of safety and load calculations, no consensus is reached on the specific design configurations or the adequacy of the proposed calculations.

Contextual Notes

Participants note the complexity of the design and the need for accurate calculations, but there are unresolved aspects regarding the assumptions made in the calculations and the specific configurations of the bearing mechanisms.

Who May Find This Useful

Individuals involved in mechanical design, particularly in playground equipment, as well as those interested in the application of physics in engineering contexts may find this discussion relevant.

Yves De Keuster
Messages
2
Reaction score
2
Dear Physicians,

I am in the process of developing a playground carousel (see example attached) and need to calculate some forces acting on the construction in order to design the bearing mechanism and select the correct bearings for the job. I've made an outline which you'll find attached, with all information i have currently available. A load of 5000N will be applied on one side of the spinning disc Ø160cm (= 63 inches) and rotated at a max. speed of 60 rpm (handdriven).

A bearing mechanism for a carousel typically consists of two bearings: the lower of the two bearings will be mostly loaded axially (thrust), the upper bearing will be mostly loaded radially.

- Can you help me out in determing the loads in this configuration? Espacially the radial load, since the axial load is quite straightforward.
- I am not sure about the minimum required space between the two bearings (dimension H) either, so any suggestion or advise regarding this is also greatly appreciated.

Thank you,

Yves
 

Attachments

  • carousel-outline.jpg
    carousel-outline.jpg
    18.9 KB · Views: 784
  • carousel outline.pdf
    carousel outline.pdf
    769.6 KB · Views: 395
  • carousel example.jpg
    carousel example.jpg
    64.7 KB · Views: 676
Engineering news on Phys.org
Dag Yves,

5000 N corresponds to a mass of 500 kg, about five adults.
To make them spin at a sickening 60 rpm (## \omega = 2\pi\ ##) radians per second requires a centripetal acceleration of ##\omega^2 r \approx 32 ## m/s2 , or about 3 ##g##, meaning a radial force of ##m \omega^2 r \approx ## 16 kN

This force has to act at the back rest (or rather at the radius of the center of mass, so the actual r < 0.8 m), so a bar as in the picture is utterly uncomfortable !

( I hope you are doing a kind of worst case study !)

In practice people lean forward, thus reducing the effective r, but when they are forced to give up due to high ##\omega##, things can become painful

As said, this radial force has to act at the back rest, so a radial bearing as high as possible is recommended. The the distance h to the axial bearing should be high to allow delivering the torque needed to 'axially move the radial force'Since - as shown in your example picture - the 'steering' wheel is necessarily mounted on the static axis, it would be an idea to mount the radial bearing as high as possible and have the axial bearing as low as possible (it will still have to deliver a radial force, though -- see preceding paragraph).

Find one of these things and try it out. Do some measurements with a (stop)watch -- 60 rpm seems unrealistic to me (and it contributes quadratically!).

If your device is not like in the picture but as shown in the drawing, the story is quite different, not physics-wise but number-wise.
 
  • Like
Likes   Reactions: AZFIREBALL
Welcome to the PF, Yves. :smile:

From your New Member Introduction thread:
Yves De Keuster said:
I have a basic knowledge of physics but for some projects my knowledge is insufficient, and since Google is not helping me, i tried joining this forum in search for some answers.
I don't know about Belgium, but here in the US I think most folks who design equipment like that would be certified Professional Engineers (PEs), and they would work with their company's liability insurance carrier to be sure they were designing to whatever industry standards and regulations apply. Is there something similar in your country? Have you talked with your company's liability insurance agent to see what they would want to see in terms of the design of such equipment?

It's okay to ask for some advice on a web forum, but to actually design such equipment, I think you probably need to do more than just ask us.

Check this out for example:

https://www.playgroundequipment.com/certifications/

Any piece of playground equipment, from swings to a full structure, must meet certain standards to be considered safe. PlaygroundEquipment.com is committed to meeting and exceeding those standards. We understand that safety is always your first concern and by meeting these standards and certifications we can provide you with a sense of relief so you can focus on children having fun.

IPEMA Certified

ASTM Standards

CPSC Standards
 
  • Like
Likes   Reactions: BvU and anorlunda
Hello BvU, thank you very much for taking the time to look at my problem and submitting this helpfull calculations.
- Yes, the 60 rpm has a safety factor included. I tried rotating a similar carousel myself for one minute (without children on it!) and reached 45 rpm.
- Your recommendations about the radial bearing inside the tube of the handwheel (and as high as possible) seems the logical solution indeed, but i am investigating the design as in the pdf were the bearings are both underneath the platform, so i can have one mechanism for possible other variations as well (standing models without seats or central handwheel).

Hello Berkeman,
I am very aware of the industry standards here in Europe (EN1176) as well as in USA (ASTM and CPSC). The 500kg loading on one side of the carousel also comes from this standard as one of the tests. But it is still to the designer to meet the requirements and find the correct solution to pass the different tests described, hence my search for answers concerning calculating loads.

Thank you,

Yves
 
  • Like
Likes   Reactions: berkeman

Similar threads

  • · Replies 4 ·
Replies
4
Views
3K
  • · Replies 9 ·
Replies
9
Views
2K
  • · Replies 5 ·
Replies
5
Views
8K
  • · Replies 5 ·
Replies
5
Views
6K
Replies
5
Views
3K
  • · Replies 15 ·
Replies
15
Views
3K
  • · Replies 1 ·
Replies
1
Views
2K
Replies
1
Views
2K
Replies
5
Views
40K
Replies
7
Views
3K