Static Analysis Of Bolted Joints

Click For Summary

Discussion Overview

The discussion revolves around the static analysis of bolted joints in a mechanical structure, focusing on understanding the forces acting on the members and the stress state of the system. Participants explore the complexities of static indeterminacy, the implications of support conditions, and the challenges of validating simulation results against hand calculations.

Discussion Character

  • Exploratory
  • Technical explanation
  • Debate/contested
  • Mathematical reasoning

Main Points Raised

  • An undergraduate student seeks to perform a static analysis of a bolted joint structure, questioning the appropriateness of reaction force placements due to the structure's support conditions.
  • Some participants suggest that static indeterminacy is a common challenge and propose using Finite Element Analysis (FEA) or making simplifying assumptions to address it.
  • One participant raises concerns about the clarity of determining reaction forces at specific distances (u and u') and questions the impact of potential floor irregularities on load distribution.
  • Another participant emphasizes the importance of understanding how even minor imperfections in support conditions can significantly affect load distribution in structures.
  • The original poster expresses uncertainty about how to validate simulation results from SolidWorks against manual calculations, particularly in the context of static indeterminacy.
  • A participant discusses the need to clarify the nature of support provided by bolted joints compared to welded joints, highlighting the differences in how they resist forces and moments.

Areas of Agreement / Disagreement

Participants do not reach a consensus on the best approach to handle static indeterminacy or the implications of support conditions. Multiple competing views on the nature of reaction forces and the impact of floor irregularities remain unresolved.

Contextual Notes

Participants acknowledge limitations in their understanding of real-world applications of static analysis, particularly regarding the assumptions made in academic settings versus practical scenarios.

Who May Find This Useful

Mechanical engineering students, professionals involved in structural design, and those interested in the practical applications of static analysis and bolted joint design may find this discussion relevant.

Satonam
Messages
38
Reaction score
1
Greetings,

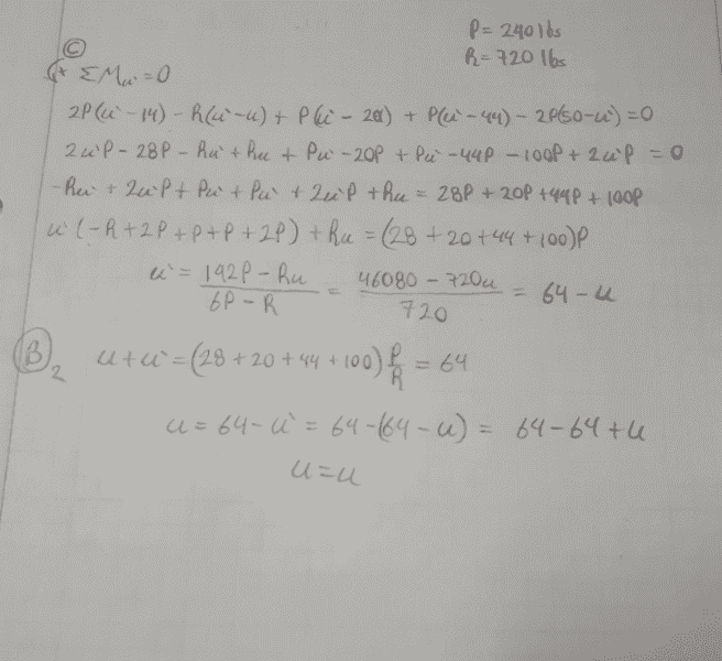
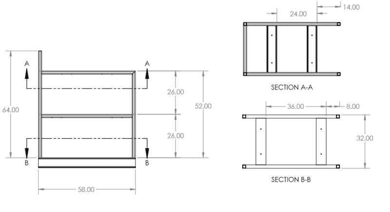
I'm an Undergraduate Mechanical Engineering student. I want to design bolted joints on Figure 1, I'm trying to perform a basic static analysis of the structure to understand the forces acting on its members and its current stress state. I've included dimensions and position of its components in Figure 2. Units are in inches. The structure is divided into three levels, each consisting of two beams which share a combined load of 480-lbs. Assuming they share an even 240-lbs per beam and taking the line of action to be perpendicular to the beam's centerline, I've included my free-body diagram and calculations in Figure 3 and Figure 4.

Figure 1.
upload_2019-2-14_12-5-41.png

Figure 2.
upload_2019-2-14_12-14-32.png

This structure rests on the floor as support. I never realized until now, but college courses never use the floor as a support in assignments, so I'm not entirely sure how to approach it. It's hard to see, but Figure 1 shows that the two beams of the bottom level aren't touching the ground. The entire structure is supported by the two 58" beams on the bottom.

My intuition says that the reaction forces from a planar supporting surface, like the floor, will create a distributive force with its peak acting along the line of action and progressively diminishing at distances away from said point. (Figure 5) In the example shown in Figure 5, these distributive reaction forces can then be simplified as two concentrated forces acting on or near the line of action of its loads.

Due to the symmetry of applied loads shown in the free-body diagram of Figure 3, I'm expecting two reaction forces a distance u and u' from the origin. I also expect 14" < u < 20", where u' = u if measured from the right.Figure 3.
upload_2019-2-14_13-8-0.png
Note: In FBD 2 of Figure 3, the bottom member is not in contact with the floor, only the edges (which represent beams going into the page). The 2R reaction force in the center represent the two reaction forces in FBD 1 as viewed from the Y-Z plane. I'm not sure whether it would be more appropriate to place the reaction force in FBD 2 on z = 0 since that is where contact is made.

Figure 4.
upload_2019-2-14_12-44-16.png

Figure 5.
upload_2019-2-14_12-51-42.png

Comments:

In hindsight, while writing this post, I noticed some mistakes I made. For instance, in FBD 1 of Figure 3, I only acknowledged two reaction forces, but there should actually be four reaction forces because FBD 1 only represents half of the system. Furthermore, in FBD 2, it's probably more accurate if I put the 2R reaction force at z = 0" and add another 2R at z = 32". However, perhaps I can still represent it as 4R at z = 16" ? (I'm thinking the answer is no)

With that said, are there any other mistakes I've made concerning this task? Would correcting the reaction forces to account for the other half of the system solve my predicament? I feel like this should be easy for me, but applying academic knowledge to real-world conditions seem to be more challenging than I thought. I think part of the problem is that we never see how a problem statement is formed, we're only ever told that a beam is simply supported, which is just an idealized model representing real-life situations -but we don't know how that looks in real life (except for obvious cases).
 

Attachments

  • upload_2019-2-14_12-5-41.png
    upload_2019-2-14_12-5-41.png
    12.7 KB · Views: 826
  • upload_2019-2-14_12-14-32.png
    upload_2019-2-14_12-14-32.png
    7.9 KB · Views: 903
  • upload_2019-2-14_12-43-52.png
    upload_2019-2-14_12-43-52.png
    51.8 KB · Views: 532
  • upload_2019-2-14_12-44-16.png
    upload_2019-2-14_12-44-16.png
    50.8 KB · Views: 761
  • upload_2019-2-14_12-51-42.png
    upload_2019-2-14_12-51-42.png
    139.7 KB · Views: 713
  • upload_2019-2-14_13-2-39.png
    upload_2019-2-14_13-2-39.png
    51.6 KB · Views: 500
  • upload_2019-2-14_13-5-10.png
    upload_2019-2-14_13-5-10.png
    53.8 KB · Views: 524
  • upload_2019-2-14_13-5-33.png
    upload_2019-2-14_13-5-33.png
    54.5 KB · Views: 540
  • upload_2019-2-14_13-8-0.png
    upload_2019-2-14_13-8-0.png
    51.7 KB · Views: 812
  • Like
Likes   Reactions: berkeman
Engineering news on Phys.org
Welcome to the world of static indeterminacy! This is just reality. You can deal with it by FEA, incorporating some assumptions ab out the flatness of the floor, the nature of the loading, etc., or you can make some simplifying assumptions.
 
  • Like
Likes   Reactions: jim hardy
Satonam said:
I'm expecting two reaction forces a distance u and u' from the origin
Bear with me, but the reason for determining the 'reaction' forces at u and u' is unclear.
Are you possibly thinking of putting another support at these particular locations for added load bearing capability?
If the floor has a hill at u and u' then that would make sense to me.
What if the floor has a valley at those two locations and the contact points with the floor are somewhere else?

What I see is four columns supporting the load from the top two layers, and the horizontal beams supporting the load from the bottom layer.
The beam may or may not rest on an even floor.
It is conceivable that the floor may have a topography, and the structure rigid enough, such that only three contact points are possible.
The structure will have a wobble.
A structure flexible enough may eliminate the wobble as it settles into the features of the floor.
 
Thank you for the reply!

Dr.D said:
Welcome to the world of static indeterminacy! This is just reality. You can deal with it by FEA, incorporating some assumptions ab out the flatness of the floor, the nature of the loading, etc., or you can make some simplifying assumptions.

I'm actually trying to simulate a static analysis with SolidWorks, but because I have little experience with simulation, I wanted to validate the results I received from the program by doing some hand calculations. If I can't confirm my results manually due to static indeterminacy, how else would I validate results from a simulation? How do I know it's safe to make decisions based on what the program spits out?

256bits said:
The beam may or may not rest on an even floor.
It is conceivable that the floor may have a topography, and the structure rigid enough, such that only three contact points are possible.
The structure will have a wobble.
A structure flexible enough may eliminate the wobble as it settles into the features of the floor.

I was assuming that the floor was perfectly flat. I know there are irregularities, but does it make that big of a difference if there are no obvious hills and valleys? (honest question)

256bits said:
Bear with me, but the reason for determining the 'reaction' forces at u and u' is unclear.

I'm not planning on placing supports at u and u', the reason I was trying to determine u and u' was to check myself. If my assumption that 14" < u < 20" was accurate, then that would have meant that I could trust my reasoning.
 
Satonam said:
I was assuming that the floor was perfectly flat. I know there are irregularities, but does it make that big of a difference if there are no obvious hills and valleys? (honest question)

Imagine a simple, rectangular, four legged table, with all the legs exactly the same length. On a perfectly flat floor, we might feel safe in saying that all four legs carry 1/4 of the weight of the table. But now, shorten one leg (just one!) by 10^(-100000) mm. That leg no longer touches the floor at all! It cannot possible carry 1/4 of the table weight. So yes, it really does make that big of a difference!
 
I never realized how difficult it is to design a bolted bracket I can confidently prescribe to employers. Perhaps that's just because I'm inexperienced. Would you guys be able to help guide me in the right direction?

Here's my game plan:

Objective: Design brackets for a beam with a single load.
  • Determine forces and moments at supports for a statically indeterminate problem.
  • Use resulting reaction forces and moments to determine required dimensions and material properties of bracket.
    • Bracket Components
      • Sheet Metal
        • thickness
        • material
        • length
      • Bolts
        • diameter
        • length
        • quantity
        • distance between bolt centers
        • material
My main challenge right now is actually trying to determine what kind of "support" a bracket represents. I know a welded joint is considered a fixed support, but what about bracket joints? It seems to me that the different between bolted and welded joints is that welded joints sustain reaction forces and moments while a bracket distributes them. For instance, depending on the orientation, the sheet metal resists bending moment while the bolts support reaction forces.

If I can figure out what kind of support a bolted joint represents, then I can determine the correct beam deflection equations to complete the first task. As for the second task, I'll have to analyze how the bolts are transmitting the forces between the sheet metal and "wall". The bolt may be experiencing tension or shear while the sheet metal may be experiencing a moment or transmitting the shear.

Any help would be appreciated!
 
You speak about "a bolted joint," but there are many applications of bolts, each giving rise to different types of loading on the bolt. You need to post a clear figure showing your bracket and the expected loads (even if you cannot evaluate them, you know they are there). Then it may be possible to help you further.
 
256bits said:
The structure will have a wobble.
...and during that wobble there will be two legs supporting the load, not the first impression of three. (Oops)
 
  • Like
Likes   Reactions: 256bits
Fig. 1 shows two plain carbon steel channels connected at a corner by an L-bracket (also plain carbon steel). According to Solidworks, the loading of the entire structure is such that the forces acting at the interface between the vertical member, the horizontal member, and the bracket are as follows:

Sum x = 3.35 lbs
Sum y = -281.63 lbs
Sum z = -38.65 lbs

These forces must be resisted by the bracket, the horizontal member, and bolts. The design intention is such that the bolts bear the least amount of loading, so that their main function is only to hold the parts together while the horizontal member and bracket stop the vertical member from deflecting.

A close-up of the bracket region in the y-z plane is shown in Fig. 2. The cross-section of the vertical member and bracket are shown in Fig. 3.

I'm confident with simulation results indicating that the horizontal member can support the vertical load (Sum y) with an acceptable factor of safety (FS). Therefore, my concern is whether the bracket can resist the moment created by Sum z if the moment arm is about 23". I wanted to perform some hand calcs to verify simulations by modeling the vertical member as a cantilever beam with a fixed wall and a single load at its end. The "fixed wall" is represented by the bracket-horizontal member joint. However, the bracket doesn't "see" the entirety of the moment created by Sum z, it's shared and distributed between the bracket, the horizontal member, and the bolts.

In other words, as the vertical member rotates in the clockwise direction, the bottom end of said member will tend towards the left. (Fig. 2) As it attempts to rotate, the the left end corner will press against the bracket while the right end corner presses against the horizontal member. In addition, the bolt on the left will be in tension while the bolt on the back will be in shear. I'm not worried about the bolts because simulating a grade 2 coarse thread bolt with 13 threads/inch and 57000 psi yield strength on Solidworks has generated consistent reaction forces regardless of mesh quality. The bolts should be safe as long as bracket deflection is minimized.

At last, this leads me to my question. How would you simplify this problem to accurately account for the forces "seen" by the bracket when all components are mutually dependent?

244549
244550
Fig.1

244551
244552
Fig. 2

244553
Fig. 3. Cross section in the x-z plane. (Couldn't add more images)
 
  • #10
Hello again,

I wasn't sure whether I should post this here or start a new thread although they are somewhat related. I want to analyze a similar frame from a two-dimensional point of view. Recalling what I remember from Statics, I started by treating the following structure as a truss. (They are C-Channels)

1569360163982.png


However, before I even attempted to solve for the reactions, I'm finding that

m + R < 2j

Which means the frame is unstable, correct? How is that possible when I have seen structures like this in industry?

Furthermore, should there be moment reactions at supports A and B? That's what I thought initially, but I haven't been able to find any truss sample problems that use moments as reactants.
 
  • #11
You will also need to include moment reactions at the foundations.
 
  • Like
Likes   Reactions: Satonam
  • #12
So, if I performed this static analysis properly, the moments at the supports Ma = Mb = 0 and the horizontal reactions Ax = Bx = 0.

However, this is not useful to me in determining the value of forces acting on the brackets (which would form the foundation joints and all other joints. However, in a perfect world where the structure is perfectly level and erect, this static analysis would be true and it would stand by just sitting on the floor without any support as long as nobody touched it. What causes it to fail is it's imperfections and interaction with the outside. In light of this, should I, for example, tilt the entire structure several degrees in my static analysis or add an external force exerted by a man leaning on the structure? Would that give me more reliable numbers I can use to design foundational joints?

1569618057402.png
 
  • #13
Satonam said:
What causes it to fail is it's imperfections and interaction with the outside. In light of this, should I, for example, tilt the entire structure several degrees in my static analysis or add an external force exerted by a man leaning on the structure?

In a structures class homework problem, you only consider the loads given in the problem statement. A real world structure is different.

Real world considerations for buildings include wind and/or earthquake loads. Real world loads on a warehouse storage rack structure include a forklift bumping into the structure, either at floor level or the load bumping into the shelf. Storage rack shelf loads also include the impact from a forklift lowering the load at full speed. In the real world, a worker will see a shelf labelled 2000 lbs, then put a 2000 lb object in the center of the shelf, thus making the peak stress double that of a distributed load. If the structure is supporting a crane, then fatigue is a consideration. The engineer deals with this by estimating the forces from realistic worst case loads, then designing the structure for those forces.

If designing a real world structure, it is a very good idea to find some people that will be using it and asking the question "This is what we think, now please tell me how it is really used, especially on the night shift". Do this when their supervisor is not nearby.
 
  • Like
Likes   Reactions: 256bits, Satonam and Tom.G

Similar threads

  • · Replies 9 ·
Replies
9
Views
3K
  • · Replies 5 ·
Replies
5
Views
6K
  • · Replies 10 ·
Replies
10
Views
3K
  • · Replies 5 ·
Replies
5
Views
2K
Replies
6
Views
7K
  • · Replies 18 ·
Replies
18
Views
7K
Replies
13
Views
4K
  • · Replies 2 ·
Replies
2
Views
3K
Replies
2
Views
2K