Where is the center of mass located for an irregular object?

  • Thread starter Thread starter huybinhs
  • Start date Start date
Click For Summary
SUMMARY

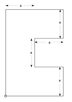
The discussion focuses on calculating the center of mass (CM) for an irregular object by dividing it into regular shapes, specifically squares. The user seeks assistance in determining the x and y coordinates of the CM in relation to a defined variable 'a'. The solution involves placing the mass of each square at its center and using these point masses to find the overall center of mass. The method outlined is a practical approach for solving such problems in physics and engineering.

PREREQUISITES
  • Understanding of center of mass concepts
  • Basic knowledge of geometry and area calculation
  • Familiarity with mass distribution principles
  • Ability to perform coordinate system transformations
NEXT STEPS
  • Study the principles of center of mass in physics
  • Learn about mass distribution in irregular shapes
  • Explore techniques for dividing complex shapes into simpler geometries
  • Investigate applications of center of mass in engineering design
USEFUL FOR

Students in physics or engineering courses, educators teaching mechanics, and anyone interested in understanding the principles of mass distribution and center of mass calculations.

huybinhs
Messages
229
Reaction score
0

Homework Statement



_.png


a) Place the origin, O, at the lower left. If the positive x-axis points to the right along the page, what is the x coordinate of the center of mass in terms of a?

b) If the positive y-axis points up along the page, what is the y coordinate of the center of mass in terms of a?

The Attempt at a Solution



Could u guys help me to start? Thanks so much!
 
Physics news on Phys.org
Cut the irregular object to regular pieces (squares). Place the mass of each piece into the centre and find the CM of these point masses.

ehild
 
Got it! Thanks! ;)
 

Similar threads

  • · Replies 25 ·
Replies
25
Views
2K
Replies
3
Views
1K
  • · Replies 6 ·
Replies
6
Views
4K
  • · Replies 9 ·
Replies
9
Views
3K
  • · Replies 3 ·
Replies
3
Views
854
  • · Replies 9 ·
Replies
9
Views
1K
  • · Replies 2 ·
Replies
2
Views
2K
Replies
67
Views
5K
  • · Replies 4 ·
Replies
4
Views
8K
  • · Replies 19 ·
Replies
19
Views
4K