Paper folding manual machine - plan folding

Click For Summary

Discussion Overview

The discussion revolves around the design and mechanics of a paper folding machine, focusing on the functionality of a spring linear clamp and the overall mechanism involved in folding paper. Participants explore various configurations, mechanisms, and personal projects related to building such a machine.

Discussion Character

  • Exploratory
  • Technical explanation
  • Debate/contested
  • Experimental/applied

Main Points Raised

  • One participant describes the lever action of the machine, suggesting that it releases a spring-loaded clamp to hold the paper in place.
  • Another participant requests a sketch to visualize the mechanism, indicating a desire for clarity in understanding the design.
  • A sketch is provided, illustrating how the handle moves to engage and disengage the clamp, with a caution to consider different designs for better performance.
  • Discussion includes observations from a video, noting a rocking motion of the clamp that may require a rubberized roller to mimic the machine's action.
  • One participant speculates about the synchronization of the levers and the necessity of a trigger mechanism to quickly engage the clamp when the metal sheet moves away.
  • Another participant interprets the function of an "unlock" knob, suggesting it releases the connection between handles while still allowing some interaction between them.
  • A participant shares their own 3D printed folding machine design, detailing its mechanics and limitations, including the need for better materials and adjustments for more folds.
  • There is a request for ideas on creating a cost-effective folding machine that can handle larger paper sizes.

Areas of Agreement / Disagreement

Participants express various ideas and interpretations regarding the folding machine's mechanics, with no clear consensus on the best design or method. Multiple competing views and hypotheses remain throughout the discussion.

Contextual Notes

Participants acknowledge the complexity of the mechanisms involved and the potential for different configurations, indicating that some designs may work better than others. There are also mentions of limitations related to the quality of 3D prints and material choices.

Who May Find This Useful

Individuals interested in mechanical design, DIY projects, and those looking to create or improve paper folding machines may find this discussion valuable.

Adze
Messages
7
Reaction score
2
Hello everyone!

I am trying to replicate a folding machine, just as a fun project for home use.

I understand this simple idea of a folding machine, and I know which measurements I should take.

The question behind this project that I simply can´t understand is the spring linear clamp which holds paper in space. There seems to be a trigger that releases the clamp after it has been streched.

Does any of you understand the idea?



also here is a side image of the folding machine

What are your thoughts on how it´´s made?

Regards,
 

Attachments

  • 3D-Layout1.jpg
    3D-Layout1.jpg
    31.4 KB · Views: 679
Physics news on Phys.org
Hi @Adze
First Post.
Welcome

Lever action- one end slides up( or down depending on the linkage ) a ramp at the end of the swing and releases the clamp - probably spring loaded to a give a particular pressure to hold the paper. Reversing the swing let's the clamp clamp down onto the paper.
Interesting idea for build.
 
  • Like
Likes   Reactions: Adze
Can you sketch it please?
 
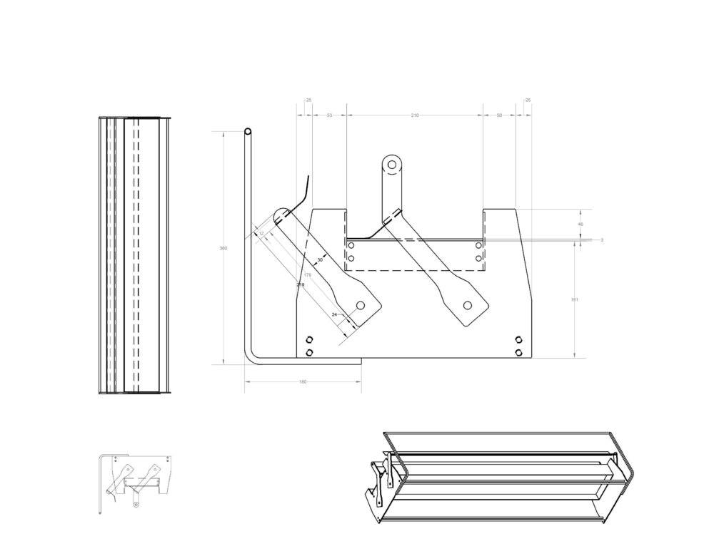
A sketch, freehand, hope you can read it.

Handle H moves back and forth.
At the end of the swing, roller A contacts Surface S, lifting clamp C from the paper bed.
Moving handle H forward, disengages roller A from surface S, allowing the spiral spring to lower clamp C back down onto the paper.

It is just a 2 minute idea that popped up in my mind.
Just be sure you think about and make your own design, rather than follow this one blindly,
There are many configurations, and some would work better than others - ie less wear, elimination of binding of the roller and surface, etc.
You might want to add a stop for the handle at its end of the stroke.
1575553887504.png
 
  • Like
Likes   Reactions: Spinnor and Adze
If the video is watched in slow motion, at the 31 second mark you can study the action of the left side clamp. There is a rocking motion that rolls to flatten the fold and clamp the paper. Probably simple mechanisms that took serious time to perfect. A rubberized roller under some pressure that rolled back and forth might mimic the action of this machine?
 
  • Like
Likes   Reactions: 256bits and Adze
Amazing! Thanks for posting this sketch, and thanks for taking your time for this,.. it is nice to stretch my brains a bit :smile:
Assuming that the two handles - levers are connected and they move synchronously, do you think that on the other side lever should have the roller on the other side.

201912051512151000.jpg


Also I think the idea of clamp is to hold the paper in place when you push the lever on other side. Doing it slowly would pull the paper out, so there must be some kind of trigger to push the clamp down immediately when the bent sheet of metal is moving away.
As seen on video it seems like this sheet of metal pushes the trigger near the clamp which squeezes the paper.

I know there are thousand of different variantions and that this machine would work without this mechanism, but it got me thinking :smile:
 
  • Like
Likes   Reactions: 256bits
Lever A2 is drawn a bit too long :D haha
 
At the beginning of the video you can see that "unlock" is printed on the face of the machine just above the knob at right end of the machine face.
Watching the video action of the handle, it appears that the initial lifting of the handle from its lowest position locks the paper and once the folding is complete then turning the "unlock" knob to releases paper lock.
Strangely, although the video appears to be in in German, "unlock" in English is what is printed on the machine face.
 
  • Like
Likes   Reactions: Adze
I believe that the unlock knob only releases the connection rod between the two handles and when you put them in outward direction the clamp holds the paper. So when a handle A or B is outward they hold the paper. And altrough the handles are not connected when unlocked it seems that they are still somehow connected, because when the front handle is pulled almost horizontally you can see the other one move a bit and clamping the paper. I will try to dig into this mechanism and do a little 3D print to test it out and of course share with you guys :D
 
  • #10
What are your thoughts on this one, seems simple
 
  • #11
So I found another interesting folding machine, which uses rollers. I made a 3D and printed it with my 3D printer.
IMG_20191212_103331.jpg

There are two rollers at tge beginning one touching another and then the pattern repeats horizontally after the second one. There are two ramps positioned at the angle of 45°. Ramp has a stop at 125 mm - 1/4 of a roller circumference. The other one is a bit shorter, at 105mm - 1/4 of a roller.
IMG_20191212_103340.jpg
Everything works a bit harsh because of the 3D print quality and rollers don't have a proper rubber on, just a duct tape :) and because I made an offset on parts so that everything could be put together.
IMG_20191212_103353.jpg

All in all it is a simple design and a "cute little machine, but it is only made for A3 length because it makes a single Z-fold. If elwe would like to customize it to more folds it would have to have another set of rollers.
IMG_20191212_103358.jpgIMG_20191212_103411.jpg

The result is of course a little wrinkled, but hey the measurements were approx. there.

IMG_20191212_103438.jpg

I still haven't gave up on the system I initially intended to create, has ane of you came up with an idea on how to create the easiest, and cheapest folding machine from A0-A3 - > A4Regards,
 
  • Like
Likes   Reactions: Spinnor

Similar threads

  • · Replies 2 ·
Replies
2
Views
3K
Replies
3
Views
5K
  • · Replies 30 ·
2
Replies
30
Views
6K
  • · Replies 20 ·
Replies
20
Views
6K
  • · Replies 4 ·
Replies
4
Views
3K
  • · Replies 2 ·
Replies
2
Views
615
Replies
1
Views
3K
Replies
3
Views
2K
Replies
1
Views
4K
  • · Replies 1 ·
Replies
1
Views
6K