Help designing a Machine Shop Turntable- Flexure Rigidity questions

  • Thread starter Thread starter nezednemo
  • Start date Start date
Click For Summary

Discussion Overview

The discussion revolves around the design considerations for a turntable intended for a machine shop, specifically focusing on flexure rigidity and the appropriate thickness of A36 steel plate. Participants explore various factors affecting the design, including weight distribution, reinforcement strategies, and the implications of using diamond plate versus flat plate.

Discussion Character

  • Technical explanation
  • Debate/contested
  • Mathematical reasoning

Main Points Raised

  • One participant is designing a turntable for a 6000-pound machine and is considering the thickness of A36 steel plate to ensure adequate flexure rigidity.
  • Questions are raised about the alignment of the machine's center of mass with the central bearing and the potential impact of misalignment on the design.
  • Another participant suggests that a flat plate may provide more resistance than diamond plate of equivalent thickness, prompting a reconsideration of the material choice.
  • Concerns are expressed regarding the clearance needed for ball transfer bearings and how deflection could affect the load distribution among them.
  • A participant acknowledges the misconception about diamond plate offering more resistance and discusses alternative reinforcement methods, such as welding flat bar to the edges.

Areas of Agreement / Disagreement

Participants express differing views on the effectiveness of diamond plate versus flat plate and the necessity of clearance for ball transfer bearings. The discussion remains unresolved regarding the optimal design choices and their implications.

Contextual Notes

Participants mention various assumptions, such as the expected weight distribution and the absence of horizontal forces, which may affect the design considerations. There are also references to specific load ratings for components that have not been fully explored.

nezednemo
Messages
8
Reaction score
3
TL;DR
How to calculate deflection on a center supported plate with localized downward force applied.
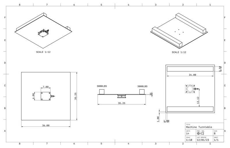
Good morning, I’m designing a turntable for a machine shop. The machine that rides on this platform weighs 6000 pounds and sits on (2) wood blocks (For ease of pickup with a fork lift). I’m trying to understand flexure rigidity and choose the right thickness of A36 steel plate.

I work closely with a metal supplier, so it is possible for me to get the chemistry on the plate, but I don’t know exactly what units to ask for.

The current plan is to use A36 ¼” Mild Steel diamond plate. I can increase the thickness of the plate to 5/16 or ⅜ if it significantly increases flexure rigidity.

I intend to reinforce the plate by welding flat bar around the edges (to reduce deflection) and adding ball transfer bearings around the perimeter of the rotational axis (to disperse weight transfer). A baseline of deflection of the plate without such supports will help me choose the right reinforcement strategy. My goal is to keep the plate as low as possible to the ground.

Thank you for looking over my project and let me know if there’s any way I can increase the clarity of my request.

IMG_0103.jpeg
 
  • Like
Likes   Reactions: DeBangis21
Engineering news on Phys.org
What makes you believe that the location of the center of mass of that machine will be exactly aligned vertically with that central bearing.

If not, would that bearing be anchored down to a concrete slab?
If so, how much moment is rated to support?

Being a machine shop, would the machine be subjected to horizontal forces or moments in a production process?
 
Lnewqban said:
What makes you believe that the location of the center of mass of that machine will be exactly aligned vertically with that central bearing.

If not, would that bearing be anchored down to a concrete slab?
If so, how much moment is rated to support?

Being a machine shop, would the machine be subjected to horizontal forces or moments in a production process?
1. It will not be as the machine will have parts added during the rebuild process. I over estimated the weight on each wood block to compensate for this. The machine weight is closer to 5400lbs totally assembled.

Beneath the bearing would be another steel platform that could be picked up with a forklift.

Between the two platforms I am budgeting for (8) ball transfer bearding which are rated for 340lbs each

The reason I’m looking for deflection information is so I can calculate a good clearance between the ball transfer bearings and the top rotating plate.

There are no expected horizontal moments expected in the application of this device.
 
IMG_6199.jpeg
 
  • Like
Likes   Reactions: Lnewqban
nezednemo said:
Between the two platforms I am budgeting for (8) ball transfer bearding which are rated for 340lbs each

The reason I’m looking for deflection information is so I can calculate a good clearance between the ball transfer bearings and the top rotating plate.

Why the diamonds?
You could get more resistance from a flat plate of equivalent total thickness.

Why the clearance for the ball bearings?
Any deformation will rotate around from one ball bearing to the next.
If too much deflection, it will transfer a moment onto the central bearing.

Could you bend the edges of the plate down?
 
For some reason I thought diamond plate would offer more resistance- because the extra ridges are generally above the profile of the plate. But a flat plate is totally doable.

I can’t bend the edges down (no suitable brake) but I can weld 1.5” flat bar to the outside edge.

The reason I planned to add tolerance for the ball transfer bearings was because I thought too much force on them could damage them, but I see now how the force would just transfer to the next support- so I’ll just Bring them up to touching when the plate is not under load.

Thanks for this advice.
 
  • Like
Likes   Reactions: Lnewqban

Similar threads

  • · Replies 1 ·
Replies
1
Views
5K