How to wire the contactor just to switch on and off

Click For Summary

Discussion Overview

The discussion centers around the use of a 3-phase contactor, specifically how to wire it for switching on and off without any load connected. Participants seek guidance on the connection of auxiliary terminals A1 and A2 for this purpose.

Discussion Character

  • Technical explanation, Homework-related

Main Points Raised

  • One participant expresses uncertainty about how to connect the auxiliary terminals A1 and A2 for the contactor without a load.
  • Another participant requests additional information about the make and model of the contactor, suggesting that this information is necessary for providing assistance.
  • A third participant notes that auxiliary contacts are typically used for control circuit wiring rather than for switching the load directly.
  • A fourth participant humorously suggests that reading the directions may be a solution when other methods fail.

Areas of Agreement / Disagreement

There is no consensus on the specific wiring method for the contactor, and multiple viewpoints regarding the use of auxiliary terminals and the need for additional information remain present.

Contextual Notes

The discussion lacks specific details about the contactor's make and model, which may limit the ability to provide precise guidance. There is also an assumption that the auxiliary terminals are intended for control circuit purposes.

Who May Find This Useful

Individuals new to using contactors, particularly in electrical or control circuit applications, may find this discussion relevant.

Nikhil N
Messages
80
Reaction score
2
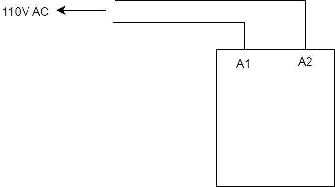
I am first time using a contactor. I have a 3-phase contactor with me, Need to switch on and off without any load connected. It has two auxiliary terminals A1 and A2, for just to turn on how it should be connected?
a26_30_10_230v_50hz-jpg.114564.jpg

contactor.png
 

Attachments

  • contactor.png
    contactor.png
    1.4 KB · Views: 618
Engineering news on Phys.org
Nikhil N said:
I am first time using a contactor. I have a 3-phase contactor with me, Need to switch on and off without any load connected. It has two auxiliary terminals A1 and A2, for just to turn on how it should be connected?
you haven't told us the make and model ... we cannot help unless you supply the information

google the datasheet and post a link to it
 
Auxillary contacts are typically not meant to switch the load. They are a set of contacts meant to connect with control circuit wiring.
 
When all else fails read the directions.
 
  • Like
Likes   Reactions: NTL2009

Similar threads

  • · Replies 4 ·
Replies
4
Views
3K
  • · Replies 2 ·
Replies
2
Views
2K
  • · Replies 14 ·
Replies
14
Views
3K
Replies
2
Views
2K
Replies
6
Views
4K
  • · Replies 1 ·
Replies
1
Views
2K
Replies
9
Views
4K
  • · Replies 38 ·
2
Replies
38
Views
4K
  • · Replies 7 ·
Replies
7
Views
1K
  • · Replies 18 ·
Replies
18
Views
2K