Slider Crank Mechanism Torque Question

Click For Summary

Discussion Overview

The discussion revolves around the torque calculations for a slider crank mechanism designed to rock a keg for carbonation purposes. Participants explore the mechanics involved, including the effects of design choices on torque and the potential for simplifying the mechanism.

Discussion Character

  • Exploratory
  • Technical explanation
  • Debate/contested
  • Conceptual clarification

Main Points Raised

  • One participant calculates the torque required to rotate crank AB and lift link BC as 88 lb-in, assuming no weight or friction, and seeks to determine the minimum motor size needed.
  • Another participant suggests checking the "Torque at theta" values and the spreadsheet's calculation of trigonometric functions, hinting at the importance of using radians.
  • A participant expresses confusion about the torque units, suggesting it should be 89 lb-ft instead of lb-in, and notes the design's deviation from typical slider crank mechanisms.
  • One participant inquires about the purpose of the device, leading to a description of its function in carbonating kegs.
  • Another participant proposes counterbalancing the crank mechanism to reduce energy loss and wear.
  • Several participants share their experiences with torque calculations, noting changes in their results when using radians and discussing the implications for static torque.
  • One participant expresses frustration with the complexity of the project and considers alternative methods for achieving the desired keg rocking motion.
  • Suggestions are made to simplify the mechanism, such as using a crank and shaft to swing the keg instead of lifting it, which could require less force.
  • A participant acknowledges the need for sloshing the liquid in the keg and contemplates the challenges of fabricating the mechanism properly.

Areas of Agreement / Disagreement

Participants express various viewpoints on the torque calculations and the mechanism's design, with no consensus reached on the best approach or the accuracy of the torque figures. Multiple competing ideas for simplifying the mechanism are presented.

Contextual Notes

Participants mention missing inertia loads and the complexity of the design, indicating that assumptions about the mechanism's behavior may affect their calculations and conclusions.

bugdry
Messages
7
Reaction score
0
I hope that it is okay for me to ask this here. It has been a long time since i did mechanism analysis.

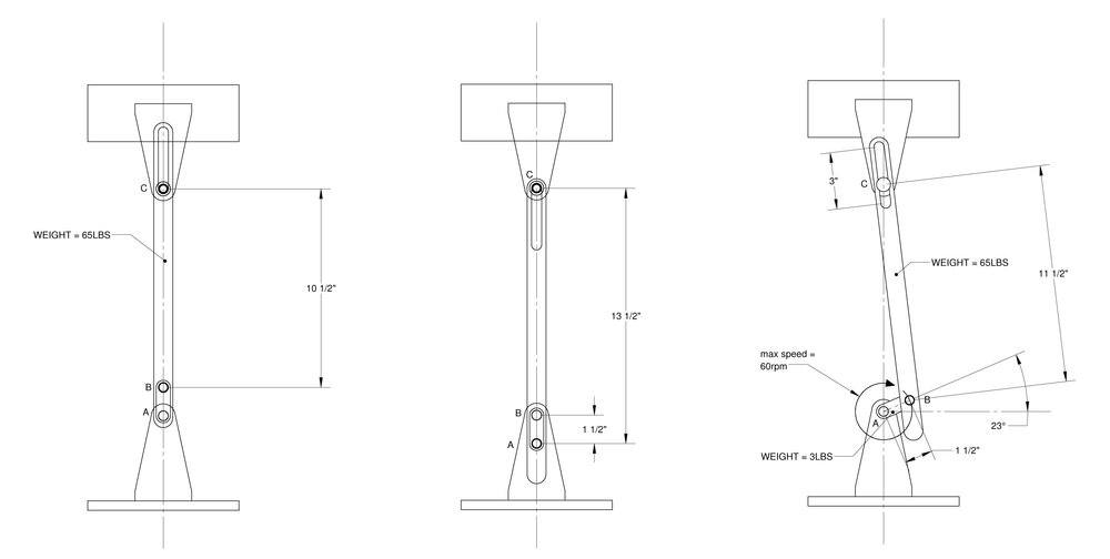
I have what I hope is a quick question. I calculate the torque required to rotate crank AB and therefore lift up the link BC to be 88lb-in. I assumed that link AB has no weight, no friction at the joints and i kept the length of BC at 10.5". I am trying to determine the minimum motor size i need to lift link BC, with link AB moving at a maximum of 60rpm.

I know i am also missing the inertia load to start the rotation. But i am just going for a ball park torque figure for now.

Thanks in advance for your help.
 

Attachments

  • TEST MECHANISM 1 - Sheet1.jpg
    TEST MECHANISM 1 - Sheet1.jpg
    19 KB · Views: 382
  • sample data.xlsx
    sample data.xlsx
    11.1 KB · Views: 310
Engineering news on Phys.org
You can start by looking at the values in your "Torque at theta" row, and ask if they make sense. Then look into how your spreadsheet calculates trig functions.

Hint: Consider the difference between degrees and radians.
 
Thanks. I have updated the equations to using radians, but it didn't change the torque at all. It would make more sense to me for the torque required to be 89lb-ft, not 89lb-in.

I am trying to solve this with trig. But my problem is that it doesn't seem like the usual slider crank mechanism, with the slider able to pivot. But in my design, I need the long link to pivot.
 
Hi,
May I ask: what is the purpose of this device ? It seems to me BC just wiggles and points A and C are fixed in position ...
 
BvU said:
Hi,
May I ask: what is the purpose of this device ? It seems to me BC just wiggles and points A and C are fixed in position ...

It is to gently rock a keg after it has been filled. With the CO2 feeding into the keg, you gently rock them and it can force carbonate a keg in about 30minutes. Instead of rolling them across my legs while I sit on a chair, I wanted to be able to strap the keg into this and run it for 30minutes while I work on other things. Mainly i thought it would be cool to design and make it.
 

Attachments

  • keg shaker.JPG
    keg shaker.JPG
    44.5 KB · Views: 291
  • keg shaker 2.JPG
    keg shaker 2.JPG
    39.4 KB · Views: 258
Ah !
So why not counterbalance the crank mechanism purplish wheel ? Less energy loss, less wear, etc ...
 
I don't remember how. Its been 15 or so years since i dealt with anything but static designs. lol
 
bugdry said:
updated the equations to using radians, but it didn't change the torque at all
Strange ! It did make a big change for me: from

1607614379823.png


to

1607614710052.png


or one period of a sine when plotted. Makes a whole lot more sense.

But this is the static torque at 0 rpm !
 
BvU said:
Strange ! It did make a big change for me: from

View attachment 274062

to

View attachment 274064

or one period of a sine when plotted. Makes a whole lot more sense.

But this is the static torque at 0 rpm !
Ah ok, yes sorry. I meant that the max torque didn't really change.
 
  • #10
ok, well I thought this would be a pretty straight forward project. I guess not. I will keep shaking them by hand. Thanks for the help guys.
 
  • #11
Wouldn't it be simpler to scale up this Weebles toy big enough to hold a keg?

1607629363631.png
 
  • #12
Is it necessary to move the keg up and down ?

Why not use a crank and shaft to just swing the bottom end ?
(or the top :smile: )

Forces required are a small fraction of what's needed to lift the things !
 
  • Like
Likes   Reactions: Lnewqban
  • #13
I was just thinking that last night. I was like there has to be an easier way to do this. I am going to work on that idea today. The mechanism just needs to slosh the liquid around in the keg to facilitate the absorption of CO2 into the liquid.
 
  • #14
bugdry said:
I was just thinking that last night. I was like there has to be an easier way to do this. I am going to work on that idea today. The mechanism just needs to slosh the liquid around in the keg to facilitate the absorption of CO2 into the liquid.
Fabricate that slot and make it work properly may be difficult.

An additional idea:
http://507movements.com/mm_419.html
 

Similar threads

Replies
7
Views
3K
  • · Replies 13 ·
Replies
13
Views
4K
  • · Replies 3 ·
Replies
3
Views
14K
Replies
7
Views
5K
  • · Replies 2 ·
Replies
2
Views
4K
  • · Replies 4 ·
Replies
4
Views
3K
Replies
6
Views
6K
  • · Replies 15 ·
Replies
15
Views
15K
Replies
9
Views
3K
Replies
10
Views
4K